Neues Feuerwehrhaus in zaisering nimmt Gestalt an

Ordentlich Holz an der Hütte

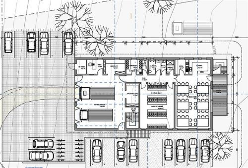
Draufsicht auf den Planentwurf des FW-Hauses Zaisering. Oben ist Norden.wimmer

Draufsicht auf den Planentwurf des FW-Hauses Zaisering. Oben ist Norden.wimmer

Nach jahrelangem Hin und Her nimmt das Feuerwehrhaus in Zaisering nun Gestalt an. In der jüngsten Sitzung des Gemeinderates Vogtareuth stellte Architekt Frank Wimmer ein abgespecktes Modell vor. Dieses wurde sehr wohlwollend aufgenommen. Einstimmig wurden Verwaltung und Architekt beauftragt, die nächsten Schritte einzuleiten.

Von Sigrid Knothe

Vogtareuth-Zaisering – Ziemlich schnell hatte sich in der Vergangenheit herausgestellt, dass das alte FW-Haus in Zaisering den modernen Anforderungen in keiner Weise mehr genügen kann. Schließlich einigten sich Wehrler und Gemeinderäte darauf, an anderer Stelle ein modernes FW-Haus zu bauen. Der bea

Mittwoch, 12. November 2025

30 Tage einmalig 0,99€

  • Testen Sie unser
  • ePaper einen Monat lang.
  • Jederzeit kündbar.
Jetzt testen

3 Monate für 1 einmalig nur 34,90€

  • Unser günstiger Einstieg:
  • 3 Monate lang zum Vorteilspreis lesen.
Angebot sichern

Sie interessieren sich für die gedruckte Zeitung?

Passende Angebote dazu finden Sie hier.

Abonnenten-Login Anmeldung für Abonnenten

ePaper-Zugang freischalten
Per E-Mail teilen
Entdecken Sie das OVB ePaper in Top-Qualität und testen Sie jetzt 30 Tage kostenlos und unverbindlich.