Weichen für Baugebiet gestellt

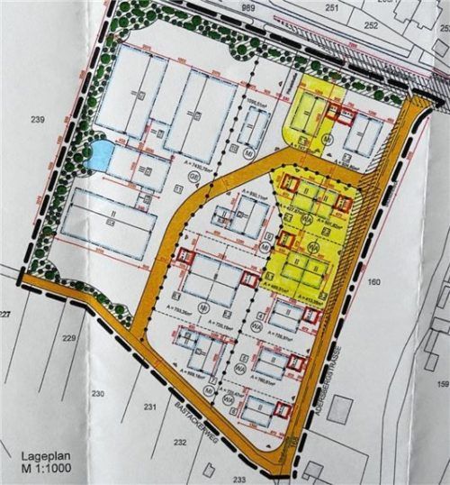
Der neue Entwurf für das Baugebiet an der Adersberger Straße sieht unter anderem sieben Parzellen im allgemeinen Wohngebiet vor. Vier von ihnen darf die Gemeinde weiterleiten. Foto  Eder

Der neue Entwurf für das Baugebiet an der Adersberger Straße sieht unter anderem sieben Parzellen im allgemeinen Wohngebiet vor. Vier von ihnen darf die Gemeinde weiterleiten. Foto Eder

Am westlichen Ortsrand von Rottau entstehen sieben Parzellen

Grassau – Die Weichen für eine Bebauung an der Adersberger Straße am westlichen Ortsrand von Rottau sind gestellt. Nach langer Diskussion stimmte der Marktgemeinderat dem modifizierten Planentwurf mit vier Gegenstimmen zu. Einige forderten eine erneute Bürgerbefragung.

Die Änderungen zum ursprüngli

Donnerstag, 6. November 2025

30 Tage einmalig 0,99€

  • Testen Sie unser
  • ePaper einen Monat lang.
  • Jederzeit kündbar.
Jetzt testen

3 Monate für 1 einmalig nur 34,90€

  • Unser günstiger Einstieg:
  • 3 Monate lang zum Vorteilspreis lesen.
Angebot sichern

Sie interessieren sich für die gedruckte Zeitung?

Passende Angebote dazu finden Sie hier.

Abonnenten-Login Anmeldung für Abonnenten

ePaper-Zugang freischalten
Per E-Mail teilen
Entdecken Sie das OVB ePaper in Top-Qualität und testen Sie jetzt 30 Tage kostenlos und unverbindlich.