Mollner verweigert erneute Abstimmung

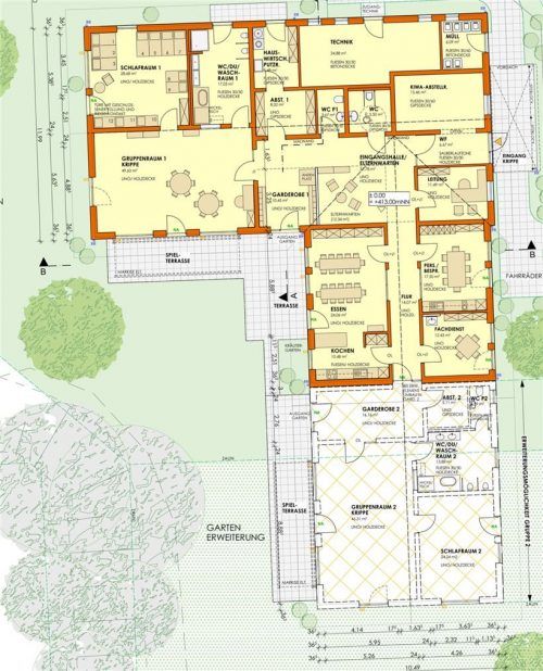
So sieht die Planung aus, die dem Gemeinderat am Donnerstag vorgestellt worden ist. Die gelben Flächen stellen den Entwurf für den Neubau der Kinderkrippe mit zwölf Plätzen dar. Die schraffierte Fläche unten kennzeichnet eine mögliche Erweiterung.

So sieht die Planung aus, die dem Gemeinderat am Donnerstag vorgestellt worden ist. Die gelben Flächen stellen den Entwurf für den Neubau der Kinderkrippe mit zwölf Plätzen dar. Die schraffierte Fläche unten kennzeichnet eine mögliche Erweiterung.

Die Kinderkrippe polarisiert weiterhin. Die Kostenschätzung für den Bau liegt um 50 Prozent höher als erwartet. In der Gemeinderatssitzung hatte Ingenieur Brodmann die Planung vorgestellt, eine Einigung kam jedoch nicht zustande. Rat Mollner platzte der Kragen.

Von Robert Wagner

Polling – Ausführlich informierte Ingenieur Michael Brodmann die Räte über den Stand der Planungen und die geschätzten Kosten für den Neubau der Kinderkrippe am Monhamer Weg. Das Resultat ließ aufhorchen: die Schätzung der Kosten liegt nämlich nicht mehr bei nur 950000, sondern mittlerweile bei 1392

Artikel 1 von 245
Freitag, 7. November 2025

30 Tage einmalig 0,99€

  • Testen Sie unser
  • ePaper einen Monat lang.
  • Jederzeit kündbar.
Jetzt testen

3 Monate für 1 einmalig nur 34,90€

  • Unser günstiger Einstieg:
  • 3 Monate lang zum Vorteilspreis lesen.
Angebot sichern

Sie interessieren sich für die gedruckte Zeitung?

Passende Angebote dazu finden Sie hier.

Abonnenten-Login Anmeldung für Abonnenten

ePaper-Zugang freischalten
Per E-Mail teilen
Entdecken Sie das OVB ePaper in Top-Qualität und testen Sie jetzt 30 Tage kostenlos und unverbindlich.