150 Wohnungen an der Eichkapelle

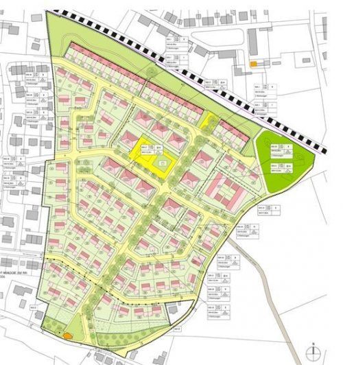
So soll das Wohngebiet an der Eichkapelle aussehen: Der Plan, den der Stadtrat jetzt ins weitere Genehmigungsverfahren geschickt hat. Aris/Angelhuber und Reithmeier

So soll das Wohngebiet an der Eichkapelle aussehen: Der Plan, den der Stadtrat jetzt ins weitere Genehmigungsverfahren geschickt hat. Aris/Angelhuber und Reithmeier

Stadtrat verabschiedet Bebauungsplan – Stellungnahmen sind möglich

von JOsef Bauer

Mühldorf – Ohne Gegenstimme hat sich der Stadtrat für den Bebauungsplan „An der Eichkapelle“ ausgesprochen. Er kann derzeit von Interessierten im Stadtbauamt und im Internet angesehen werden, Stellungnahmen dazu sind möglich.

Bebauung
deutlich abgespeckt

Wie berichtet war der Plan nach vielen Disku

Artikel 1 von 197
Mittwoch, 22. April 2026

30 Tage einmalig 0,99 €

  • danach 36,90 € mtl.
  • und jederzeit kündbar
Zum Angebot

3 Monate einmalig 36,90 €

  • Mindestlaufzeit 3 Monate,
  • danach monatlich kündbar
Zum Angebot
66% Rabatt sichern!

Sie interessieren sich für die gedruckte Zeitung?

Passende Angebote dazu finden Sie hier.

Abonnenten-Login Anmeldung für Abonnenten

ePaper-Zugang freischalten
Per E-Mail teilen
Entdecken Sie das OVB ePaper in Top-Qualität und testen Sie jetzt 30 Tage kostenlos und unverbindlich.