Feuerwehrhaus in Persdorf

Auf dem Zeichenbrett steht es schon

C. Lerche

C. Lerche

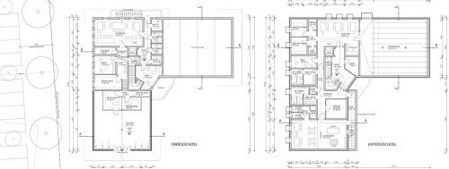
Riedering – Auf dem Zeichenbrett steht es bereits: Das Feuerwehrgebäude in Persdorf, das zugleich auch einen Übungsraum für die Luftgewehrschützen, einen Jugendraum und einen Versammlungssaal für rund 150 Besucher beherbergen soll. Im Riederinger Gemeinderat wurde der Bauantrag einstimmig beschlosse

Artikel 84 von 236
Donnerstag, 9. April 2026

30 Tage einmalig 0,99 €

  • danach 36,90 € mtl.
  • und jederzeit kündbar
Zum Angebot

3 Monate einmalig 36,90 €

  • Mindestlaufzeit 3 Monate,
  • danach monatlich kündbar
Zum Angebot
66% Rabatt sichern!

Sie interessieren sich für die gedruckte Zeitung?

Passende Angebote dazu finden Sie hier.

Abonnenten-Login Anmeldung für Abonnenten

ePaper-Zugang freischalten
Per E-Mail teilen
Entdecken Sie das OVB ePaper in Top-Qualität und testen Sie jetzt 30 Tage kostenlos und unverbindlich.