Wohnen neben Gewerbe und Festmist

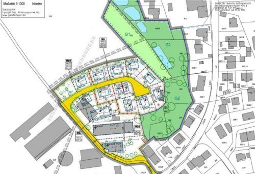
Der Bebauungsplan für Moosen Nord. Deutlich kann man im Norden die Regenwasserrückhalteanlage erkennen, bestehend aus drei Becken im Dauerstau zur Einleitung von Niederschlagswasser.  Feirer-Kornprobst

Der Bebauungsplan für Moosen Nord. Deutlich kann man im Norden die Regenwasserrückhalteanlage erkennen, bestehend aus drei Becken im Dauerstau zur Einleitung von Niederschlagswasser. Feirer-Kornprobst

Gemeinderat billigt Flächennutzungsplan und Bebauungsplan Moosen Nord-West

von ELisabeth Kirchner

Riedering – Einstimmig genehmigten die Gemeinderatsmitglieder in ihrer jüngsten Sitzung den vorliegenden Flächennutzungs- und Bebauungsplan für Moosen Nord-West, der den Gemeinderat schon seit Längerem beschäftigt.

Architekt und Stadtplaner Ferdinand Feirer-Kornprobt fasste dafür die eingegangenen

Samstag, 18. April 2026

30 Tage einmalig 0,99 €

  • danach 36,90 € mtl.
  • und jederzeit kündbar
Zum Angebot

3 Monate einmalig 36,90 €

  • Mindestlaufzeit 3 Monate,
  • danach monatlich kündbar
Zum Angebot
66% Rabatt sichern!

Sie interessieren sich für die gedruckte Zeitung?

Passende Angebote dazu finden Sie hier.

Abonnenten-Login Anmeldung für Abonnenten

ePaper-Zugang freischalten
Per E-Mail teilen
Entdecken Sie das OVB ePaper in Top-Qualität und testen Sie jetzt 30 Tage kostenlos und unverbindlich.