Mehr Platz für Familien in Untershofen

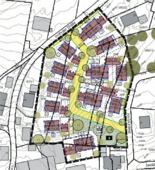
Verdichtete Baustruktur in Untershofen: Acht Einfamilienhäuser, drei Doppelhauskomplexe und ein kleines Mehrfamilienhaus sollen dort gebaut werden.
Söchtenauer Rat beschließt Bebauungsplan – 17 Wohneinheiten sollen entstehen
Söchtenau – Die Aufstellung des Bebauungsplans für das Neubaugebiet im Söchtenauer Ortsteil Untershofen war Thema bei der letzten Gemeinderatssitzung der vergangenen Wahlperiode. Damit die Sicherheitsabstände von 1,5 Metern aufgrund der Corona-Pandemie eingehalten werden konnten, hatte sich das Grem