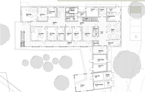
Das Erdgeschoss im Grundriss: Hier ist der Kindergarten untergebracht, im 1. Stock die Krippe, darüber die Vereine.

Das Erdgeschoss im Grundriss: Hier ist der Kindergarten untergebracht, im 1. Stock die Krippe, darüber die Vereine.

Amerang hat Grund zur Freude. Mit dem Neubau des Hauses für Kinder und Vereine ist mehr als nur ein Kindergarten entstanden. Das ortsbildprägende Gebäude in zentraler Lage bietet Raum für Bildung, Dorfgemeinschaft und Vereinstätigkeit. Mit einer klaren Vision hat die Gemeinde ein Zukunftsprojekt rea

Artikel 99 von 191
Mittwoch, 24. Dezember 2025

30 Tage einmalig 0,99€

  • Testen Sie unser
  • ePaper einen Monat lang.
  • Jederzeit kündbar.
Jetzt testen

3 Monate für 1 einmalig nur 34,90€

  • Unser günstiger Einstieg:
  • 3 Monate lang zum Vorteilspreis lesen.
Angebot sichern

Sie interessieren sich für die gedruckte Zeitung?

Passende Angebote dazu finden Sie hier.

Abonnenten-Login Anmeldung für Abonnenten

ePaper-Zugang freischalten
Per E-Mail teilen
Entdecken Sie das OVB ePaper in Top-Qualität und testen Sie jetzt 30 Tage kostenlos und unverbindlich.